REAPR Specifications

Palletizing Capability

  • Pallet Positions:  3 

  • Pallet Size:  40x48 (standard)

  • Palletizing Speed:  10 Cycles/Minute*

  • Case Throughput:  30 Cases/Minute* (when lifting multiple cases at a time)

  • Lift Capacity:  160 lbs (72 kg)

  • Stack Height:  6'-7" Standard* (can be increased with the use of a riser)

*Depends on characteristics of the product being palletized, contact BTB to confirm for your specific application.

REAPER Palletizer stacking on 2 pallets

Safety

  • Dedicated Safety Module:  Kawasaki Cubic-S and Banner XS26-2E

  • E-Stops:  1

  • Two options:  Safety area scanners or safety cage with light curtain

Additional Safetey Details:

Safety is integrated into the core of the REAPR.  The dedicated safety controller will stop any motion if a person is detected in the safety zone or if an E-Stop is activated.

Two options are available, 2D area scanners or a safety cage with a through beam light curtain.

It is important to perform a Hazard Analysis before the installation of a REAPR.  BTB can help with this function.

Safety Controller = Kawasaki Cubic S Safety Module and Banner XS26-2E Safety Controller

Safety Rating

(IEC 62061)

Safety Rating with Area Scanners = SIL2

Safety Rating with Safety Cage & Light Curtain = SIL3

Power & Air Requirements

Standard Power:  480VAC, 3 phase,  30 amps, required connector:  CS8164C

Optional Power:  208VAC, 3 phase, 60 amps (for additional cost, see Accessories)

1 Area Gripper Air:  13 scfm - connector:  1/4" NPT

2 Area Grippers Air: 25 scfm - connector: 3/8" NPT

Controls

PLC:   Allen Bradley CompactLogix 310 

HMI:  Allen Bradley PanelView

Remote Access:  EWON Cozy 131, wired and wireless 

Recipes:  30 built in recipes that are easily programmed via the touchscreen

Allen Bradley Panel View

Robot

Kawasaki RS080N

6 Axis

80kg (172lb) lifting capacity

Kawasaki RS080N

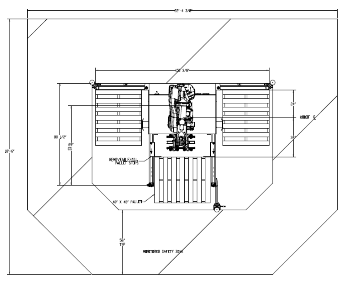
Space Requirements

A skematic of the footprint size you need for a REAPR palletizer with safety scanners

Safety Area Scanners - Requires more space, but quicker to setup

A skematic of the footprint size you need for a REAPR palletizer with safety cage

Safety Cage with Light Curtain - Bases do not need to be bolted to the floor, but have mounting holes if you wish to secure it to the floor.